ОТКРЫТАЯ КАМИННАЯ ТОПКА С СЕТКОЙ АСТОВ О2С 90\50

Астов
515000,00
р.
Открытая каминная топка Астов О2С 70/50 с сеткой - это сочетание элегантного дизайна, безопасности и удобства. Она добавит уют и тепло в ваш дом, обеспечивая при этом надежную защиту. Эта топка позволяет наслаждаться красивым видом на живое пламя, создавая теплую и уютную атмосферу.

Сетка не дает искрам и уголькам выпасть из камина, что предотвращает пожары и повреждения. Топка легко поднимается вверх и опускается без шума, чтобы можно было убрать сетку. Она скользит по направляющим с весами, что делает ее использование удобным. Встроенный клапан закрывает дымовую трубу, когда камин не используется.

Открытые топки Астов отличаются простотой в обслуживании и очистке благодаря легкому доступу к огню. Это облегчает процесс добавления дров, удаления золы и общее поддержание камина в хорошем состоянии.
Описание
Документы

Описание

Топливо: дрова

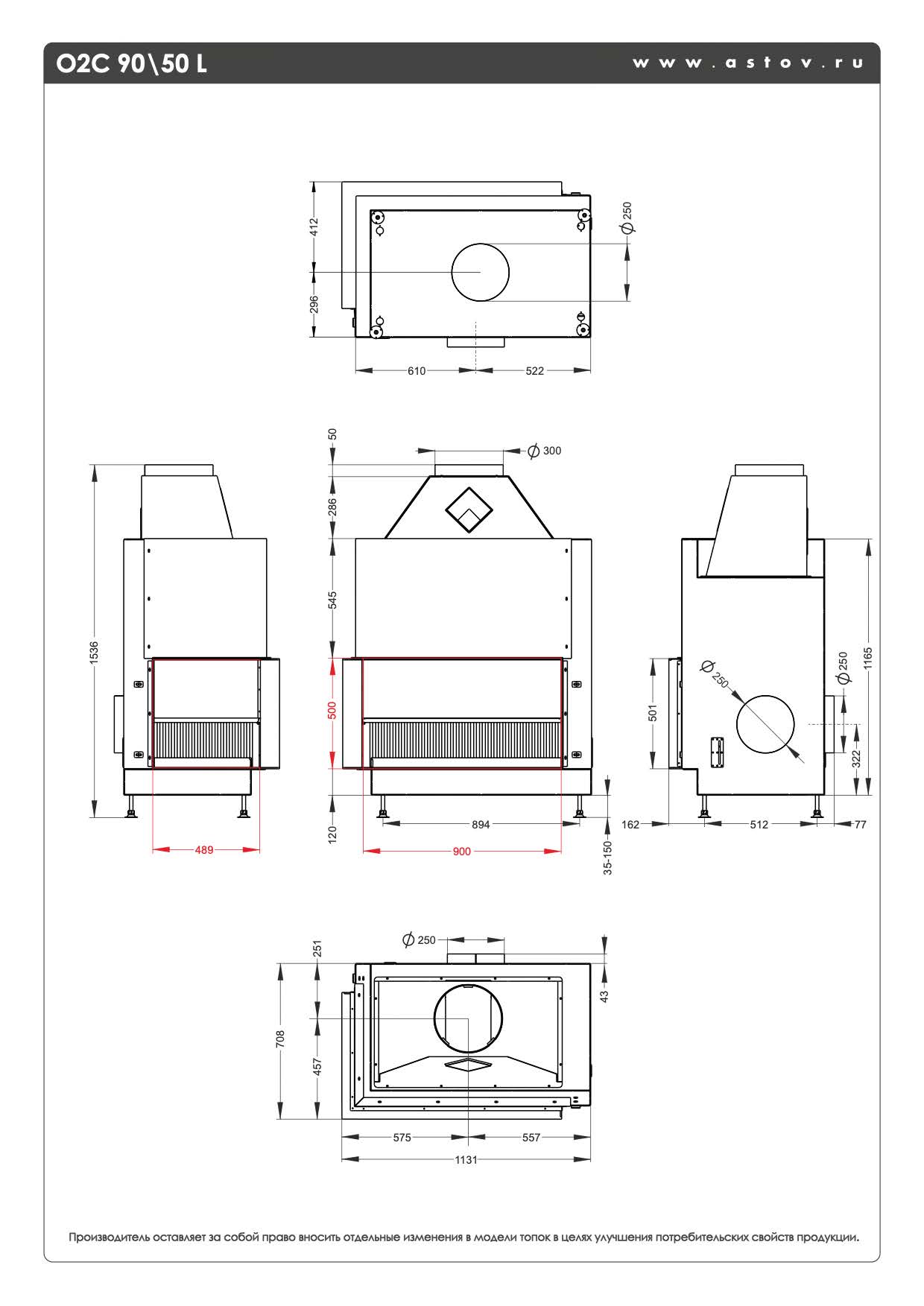
Ширина: 1131

Высота: 1536

Глубина: 751

Диаметр дымохода: 300

Гарантия (лет): 5

Ширина проема: 900

Высота проема: 500

Документы

Левая



Правая